
Дров'яні котли КТ-2Е — це твердопаливні котли нового покоління. Економічності в експлуатації цим котлам вдається досягати завдяки високому ККД, який сягає 86%.
Але головною відмінністю цієї лінійки опалювальних котлів стала повна безпека для навколишнього середовища. Використання в системі котлів вентилятора та контролера поряд з верхнім методом спалювання та розподілом струменя повітря соплами наближає цей процес спалювання до генераторної системи з одноразовим обов'язковим спалюванням виробленого газу.
Варто зауважити, що котел на твердому паливі КТ-2Е можна завантажувати один раз на 12-48 годин, оскільки саме такий термін потрібен для повного згоряння однієї дози палива. Однак навіть цей термін можна продовжити в залежності від ізоляції будівлі і зовнішньої температури повітря. Велику роль у витраті відіграє також вид палива, що використовується. Твердопаливний котел КТ-2Е має сертифікат, що свідчить про багаторазові випробування, а також екологічний атестат. Котел на твердому паливі КТ-2Е особливо часто використовують у житлових будинках, торгових приміщеннях та майстернях, проте серед великої різноманітності цієї лінійки котлів легко можна підібрати потрібний котел для школи, лікарні та цеху. Потужність котлів цього типу варіюється від 17 до 120 (кВт).
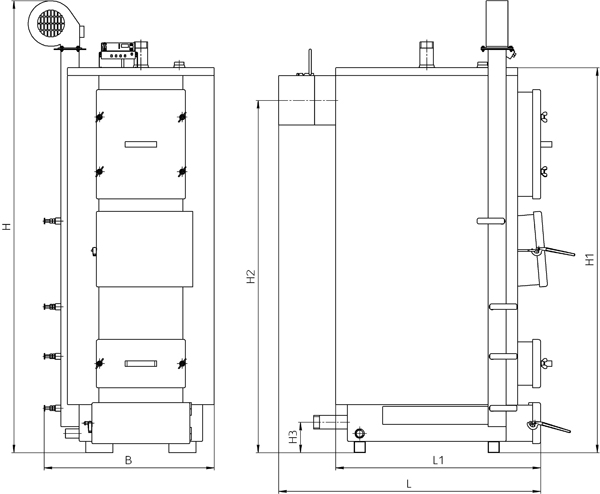
Котел опалення КТ-2Е — технічні особливості котла. Корпус твердопаливних котлів цієї серії має топкову камеру та теплообмінник, які виконані із сталі високої якості. Топка спроектована у формі чотиригранника, який також має аераційні сопла, а знизу має водяні колосникові грати, зроблену з товстостінних труб. Конвекційні канали в КТ-2Е розташувалися у верхній частині і мають форму декількох "полиць". Таке конструкційне рішення дозволило підвищити ККД казанів завдяки тому, що в конвекційній частині не накопичується конденсація. Передня частина котла увібрала ревізійні люки для очищення золи, вони, до речі, ще й полегшують доступ до конвекційних каналів. Також тут розташувалися топкові та завантажувальні дверцята, які оздоблені спеціальними термічними ущільнювачами на основі. Взагалі треба сказати, що котел на твердому паливі КТ-2Е оснащений високоякісною ізоляцією, яку захищає металевий кожух.
Монтаж твердопаливних котлів КТ-2Е повинен проводитись згідно з нормами СНІП. Його робота здійснюється циклічно, достатньо один раз завантажити паливо, розпалити котел за допомогою паперу та запустити автоматику. Як тільки задана температура буде досягнута, вентилятор вимкнеться, а контролер її підтримуватиме. Наступного разу вентилятор увімкнеться лише після того, як температура опуститься нижче за заданий рівень. Якщо в камері топки закінчується паливо, то контролер автоматично відключається. Надалі запустити котел можна буде після того, як буде очищений зольник і камера топки.
Особливості котлів опалення КТ-2Е, які зробили їх популярними:
- Наявність мікропроцесора та вентилятора, які дозволяють керувати роботою котла;
- Циклічна система функціонування казана;
- Легкий доступ до конвекційних каналів;
- Можливість автоматично підтримувати задану температуру;
- Можливість збільшити камеру згоряння за потреби;
- Оснащення люком для очищення казана від золи в передній частині казана.






