
Котел опалювальний моделі КТ-2Е-SH є низькотемпературним котлом з автоматичною системою подачі палива в камеру топки.
Твердопаливний котел оснащений корпусом, що охолоджується водою, виконаним із сталевих листів. Безпроблемна експлуатація твердопаливного котла з гвинтовою подачею залежить від застосування палива. Правильний вибір типу та сорту палива гарантує не тільки економне використання палива (ефективне спалювання), а й зменшує час, витрачений на обслуговування котла.
Призначення — опалення виробничих об'єктів та приватних житлових будинків та підігріву побутової води у будь-яку пору року.
Комплектуються твердопаливні котли КТ-2Е SH такими агрегатами:
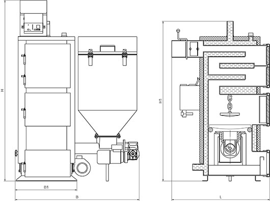
- Корпус;
- Паливний бункер;
- Пульт управління;
- Механізм подачі та спалювання пелет.
Сам корпус багатошаровий. Внутрішній шар — сталеві теплообмінники не менше 5 (мм) товщини. Чотирьохканальна секційна камера теплообмінника забезпечує рівень ККД до 83%. Зовні котел обшитий теплоізоляційним матеріалом і захищений металевим корпусом. Паливний бункер - це прямокутна ємність, виготовлена з металу. Вміщує велику кількість пелет. Зверху бункер оснащений кришкою, що забезпечує повну ізоляцію палива у бункері. Подача палива забезпечується шнеком. Шнек (равлик) — механізм, призначення якого транспортувати вантаж, переміщуючи його вздовж гвинтової осі, що обертається всередині труби, в так званому гвинтовому контейнері.
Твердопаливний котел на пелетах КТ-2Е SH має такі переваги:
Основна відмінність КТ-2Е SH від інших автоматичних твердопаливних котлів на пелеті, в тому, що робота керується вбудованим мікропроцесором, який, у свою чергу, регулює подачу нагрітого повітря вентилятором;- Так само істотною перевагою є полегшений доступ до всіх конвекційних каналів;
- Ключовий вузол — автоматичний механізм подачі та спалювання палива, зроблений у Європі лідером ринку Pancerpol. Завдяки цьому податчик оснащений функцією самоочищення, що суттєво полегшує та продовжує роботу навіть при подачі не надто якісного палива;
- Наявність контролера здійснює нагрівання води, для постачання опалювального об'єкта гарячою водою, що подається через бойлери.
Найголовніша перевага КТ-2Е SH не тільки висока продуктивність та ефективність, а й безпека роботи КТ-2Е SH. Завдяки встановленому механізму аварійного гасіння при виникненні будь-якої позаштатної ситуації, повному та тривалому відключенню електроенергії відбувається повне автоматичне відключення твердопаливного котла. Саме завдяки такій комплектації автоматичних твердопаливних котлів КТ-2Е SH обслуговування зведено до мінімуму. Необхідно періодично очищати котел від золи без відключення котла і завантажувати пелети в бункер.
У самій системі опалення температура відстежується налаштованим контролером і при виникненні різниці між фактичною та заданою температурою модулює подачу палива та надув нагрітого повітря. Разом з цим, за тривалої відсутності електроенергії, аварійний термостат сам погасить вогонь при попаданні його в шнек. Також при необхідності ви можете замовити як додаткове обладнання чавунні колосники та топити цей котел дровами, вугіллям або іншим паливом з ручним завантаженням.
Широкий асортимент пропонованих потужностей КТ-2Е SH дозволить вам вибрати твердопаливний котел із необхідним саме для вас рівнем продуктивності. Забезпечить вас якісним та безпечним теплом та гарячою водою весь опалювальний сезон, а за потреби і набагато довше.




