від
396
грн./шт.

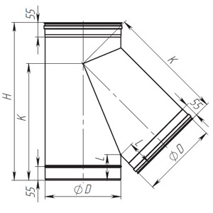
Застосовується для з'єднання вертикальної та похилої ліній димоходів та вентиляції.
Для виробництва трійника використається високоякісна нержавіюча сталь. При виготовленні комплектуючих деталей застосовується плазмове зварювання у середовищі інертного газу (аргон).


