Ревізія з оцинкованої сталі
Застосовується для відведення конденсату, перевірки та чищення димоходу.
Для виробництва ревізії використовується високоякісна оцинкована сталь. При виготовленні комплектуючих деталей застосовується плазмове зварювання у середовищі інертного газу (аргон).
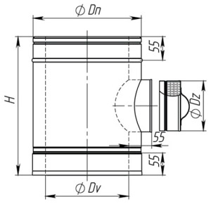
Параметри ревізії |
Значення параметрів Dv, Dn, Dzv, H| Dv (мм) | Dn (мм) | Dzv (мм) | Н (мм) | Маса (кг) |
| 100 | 160 | 100 | 333 | 1,94 |
| 110 | 180 | 110 | 333 | 2,26 |
| 115 | 180 | 115 | 333 | 2,22 |
| 120 | 180 | 120 | 333 | 2,18 |
| 125 | 200 | 120 | 333 | 2,60 |
| 130 | 200 | 120 | 333 | 2,56 |
| 135 | 200 | 120 | 333 | 2,51 |
| 140 | 200 | 120 | 333 | 2,48 |
| 150 | 220 | 120 | 333 | 2,86 |
| 160 | 220 | 120 | 333 | 2,74 |
| 180 | 250 | 120 | 333 | 3,30 |
| 200 | 260 | 120 | 333 | 3,30 |
| 220 | 280 | 120 | 333 | 3,58 |
| 230 | 300 | 120 | 333 | 4,04 |
| 250 | 320 | 120 | 333 | 4,34 |
| 300 | 360 | 150 | 333 | 4,92 |
| 350 | 420 | 150 | 333 | 5,77 |
| 400 | 460 | 150 | 333 | 6,03 |
| 450 | 520 | 150 | 333 | 7,26 |
| 500 | 560 | 150 | 333 | 7,41 |
| 550 | 620 | 150 | 333 | 8,74 |
| 600 | 660 | 150 | 400 | 10,69 |
| 650 | 720 | 180 | 400 | 12,36 |
| 700 | 760 | 180 | 400 | 12,29 |
| 750 | 820 | 180 | 400 | 14,16 |
| 800 | 860 | 180 | 400 | 13,96 |
| 900 | 960 | 180 | 400 | 15,65 |
| 1000 | 1060 | 180 | 400 | 16,57 |
SALE